Resumen general
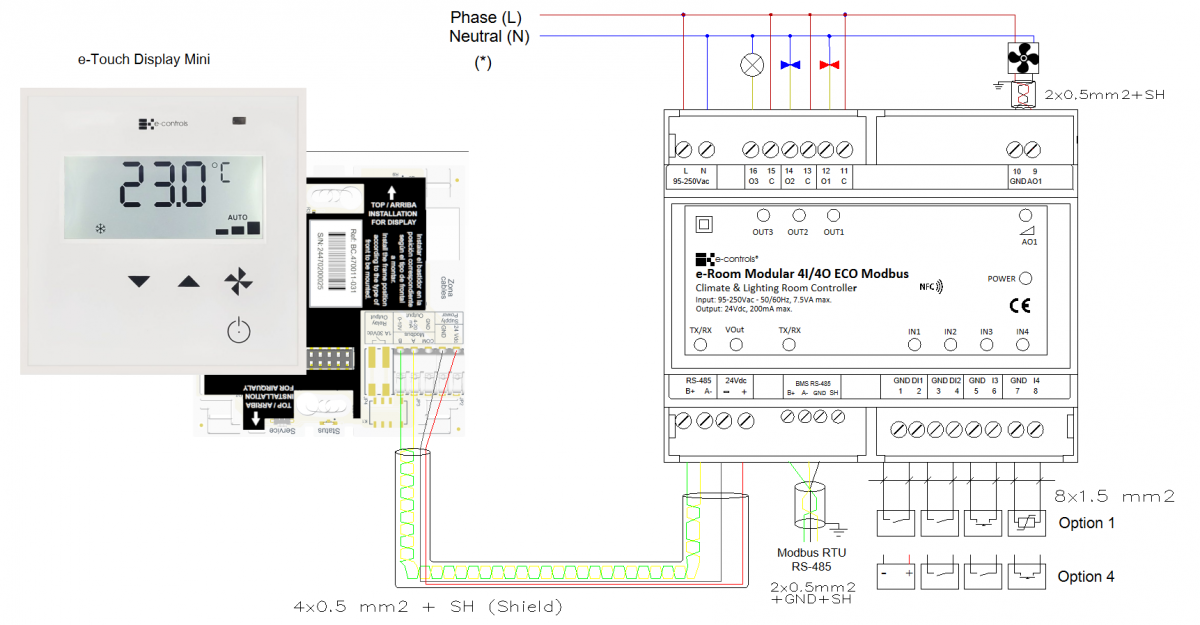
e-Room Modular ECO es un controlador de carril DIN diseñado para fan-coils EC con control de velocidad proporcional 0-10V y control de válvulas con salida Todo/Nada. El equipo incorpora un puerto de comunicación Modbus que permite su integración y control remoto desde un sistema BMS.
Dispone de modos de funcionamiento preprogramados para instalaciones de 2 tubos o 4 tubos, así como de una salida adicional para control de iluminación vinculada a la lógica de programación seleccionada. Su amplia gama de parámetros de configuración facilita la adaptación del dispositivo a las necesidades de cada proyecto.
Las 4 entradas digitales/analógicas permiten implementar funciones de eficiencia energética en la zona climatizada:
• Entrada de ocupación mediante contacto tarjetero.
• Entrada de contacto ventana, que detiene la climatización al abrirse.
• Entradas combinadas de detector de movimiento y contacto puerta, para detección automática de ocupación en habitaciones de hotel.
La configuración del equipo se puede realizar mediante la aplicación E-Configurator a través de la interfaz NFC con los equipos alimentados o sin alimentación, o bien mediante registros Modbus. En instalaciones con display, la configuración puede realizarse a través del interface NFC del Display y desde éste se transfiere automáticamente al controlador; en instalaciones sin display la configuración NFC se carga sobre el controlador y es necesario conectar una sonda de temperatura a la entrada IN4 para realizar el control de temperatura o enviarle el valor a través de Modbus. En ambos casos, todos los parámetros tanto del display como del propio controlador pueden modificarse a través del puerto Modbus del e-Room.
El equipo se alimenta a través de la red eléctrica y está diseñado para ser instalado en un armario de carril DIN.
Resumen de características generales:
- Controlador de fan-coil para instalaciones a 2 tubos o 4 tubos.
- Dos entradas de tipo contacto seco autoconfigurables: Tarjetero, Contacto ventana
- Dos entradas digital/analógicas NTC10K, para funciones diversas: Contacto puerta, temperatura agua, temperatura ambiente.
- Salida proporcional (PID) 0-10V para velocidad Fan-Coil
- Dos salidas relé para válvulas (2 tubos / 4 tubos o salida auxiliar cuando trabaja a 2 tubos)
- Una salida relé auxiliar para iluminación
- Bus de comunicaciones con interface RS-485 para comunicación con termostato display
- Alimentación equipo a través de red eléctrica
- Modo economía configurable cuando habitación está desocupada (paro / cambio consigna)
- Configuración velocidad mínima y máxima Fan-Coil
- Velocidad fan-coil enclavada configurable cuando no hay demanda
- Temperatura de consigna frío/calor configurable en modo ECO
- Banda muerta entre frío/calor configurable
- Retardo para pasar a stand-by al pasar a habitación desocupada
Esta tabla resume los modos de funcionamiento preprogramados y la función que realiza cada una de las entradas y salidas del equipo para cada modo .
Ver el documento “Manual de Configuración” del equipo donde se describen los parámetros de configuración y el mecanismo para modificar los valores de los parámetros definidos.

IN1, IN2: Entradas Digitales - IN3, IN4: Entradas Digitales/Analógicas (NTC10K)
AO1: Salida analógica 0-10V, OUT1, OUT2, OUT3: Salidas Relé.
Instalación
El equipo está diseñado para su montaje en armarios con carril DIN estándar EN 50 022. No debe instalarse sobre estantes, detrás de cortinas, cerca o encima de fuentes de calor ni expuesto a radiación solar directa.

Importante:
- Instalar el equipo en el cuadro eléctrico separando el cableado de señales de muy baja tensión (entradas) del cableado de baja tensión (salidas).
- Utilizar cable apantallado para el canal de comunicaciones con el BMS.
- Seguir siempre el tipo de cableado indicado en el esquema de instalación.
Precauciones:
- Antes de instalar, desinstalar o limpiar el equipo, asegúrese de que no haya tensión en los cables de red ni cerca del equipo.
- No cortar, empalmar ni enrollar los cables de red conectados al equipo.
- No manipular conexiones con las manos mojadas.
- No abrir, perforar ni modificar el producto.
- Mantener el equipo y los cables alejados de la humedad y el polvo.
- Limpiar únicamente con un paño ligeramente humedecido en agua.
Pasos de montaje:
- Desconectar la alimentación del cuadro eléctrico.
- Insertar el equipo en el carril DIN situando el gatillo negro en la parte inferior; tirar del gatillo hacia abajo, presionar el equipo hasta encajarlo y soltar el gatillo para fijarlo.
- Verificar que el cableado del cuadro sigue el esquema constructivo de montaje.
- Conectar los cables en los terminales según el esquema y acoplarlos al equipo.
- Restablecer la alimentación y comprobar el funcionamiento.
- Cerrar el cuadro eléctrico.
Integración
El dispositivo dispone de un interface de comunicaciones RS-485 sobre el cual se comunica utilizando el protocolo estándar Modbus RTU, y a través del cual es posible acceder todos los parámetros de configuración del equipo, monitorizar el estado de los diferentes parámetros del dispositivo tales como temperatura de la habitación, estado de ocupación, velocidad fan-coil, etc. y actuar remotamente para activarlo, cambiar la temperatura de consigna o modificar cualquier otro parámetro que esté disponible en el equipo.
El equipo incluye múltiples parámetros de configuración que permiten ajustar el producto a las necesidades de cada tipo de instalación. Todos estos parámetros se pueden configurar a través de un sencillo menú de configuración accesible desde el teclado y el display del frontal del equipo o bien remotamente a través del bus de comunicaciones.













| Passatge Garrotxa, 6 | 08830 Sant Boi de Llobregat | Barcelona | España | Tel.: +34 93 652 55 21 | Fax +34 93 652 55 22